
Maintenance, Common Area Maintenance, Heat, Insurance, Ground Maintenance, Parking, Property Management, Reserve Fund Contributions, Sewer, Waste Removal, Water
$753.07 MonthlyThis one-of-a-kind, designer-influenced home in Castello is ready for you to move in and start living your best downtown life. Freshly painted with new carpet, the space immediately sets itself apart the moment you enter. A welcoming entry area offers ample seating to unwind after your day, while built-in speakers throughout the dining & living rooms, and primary suite create the perfect soundtrack for your life.Floor-to-ceiling windows flood the home with natural light, highlighting the modern, linear feel of the layout. Step out onto the massive 300-square-foot terrace—ideal for outdoor dining, lounging, or entertaining. A natural gas sub provides endless fuel for the BBQ or fire table, making evenings on the terrace effortlessly memorable.The kitchen is a chef’s dream with quartz countertops, stainless steel backsplash, espresso cabinetry with striking bronze hardware, floor-to-ceiling windows, a large pantry, peninsula island with built-in beverage fridge, and an eating bar—perfect for entertaining or quick weekday meals. Custom HUPPE wall systems maximize storage without compromising style.The primary suite offers a lavish ensuite with dual sinks, glass-enclosed shower, and walk-in closet with custom built-ins. The second bedroom is ideal for guests or a home office. Designer lighting, new plumbing fixtures, in-suite laundry, and built-in speakers complete the thoughtful touches throughout.Castello’s exclusive amenities elevate city living: concierge service, fitness center, guest suite, heated/secure parking, and a car wash bay. With only five units per floor in this concrete-built building, privacy and quiet are guaranteed.Perfectly positioned in the heart of downtown Calgary, you’re steps from restaurants, cafés, pubs, bike lanes, grocery stores, parks, and wellness centers. Access nearby healthcare, including Sheldon Chumir, and even a pet-friendly hospital within the block.Luxury, convenience, and thoughtful design come together in this excepti onal downtown residence—perfect for the professional who wants it all. (id:61582)
| MLS® Number | A2280747 |
| Property Type | Single Family |
| Community Name | Beltline |
| Amenities Near By | Recreation Nearby, Shopping |
| Community Features | Pets Allowed With Restrictions |
| Features | Closet Organizers, Guest Suite, Gas Bbq Hookup, Parking |
| Parking Space Total | 1 |
| Plan | 0812418 |
| Structure | Deck |
| Bathroom Total | 2 |
| Bedrooms Above Ground | 2 |
| Bedrooms Total | 2 |
| Amenities | Car Wash, Exercise Centre, Guest Suite |
| Appliances | Refrigerator, Dishwasher, Stove, Microwave Range Hood Combo, Window Coverings, Washer/dryer Stack-up |
| Constructed Date | 2008 |
| Construction Material | Poured Concrete |
| Construction Style Attachment | Attached |
| Cooling Type | Central Air Conditioning |
| Exterior Finish | Concrete, Stone |
| Flooring Type | Carpeted, Ceramic Tile |
| Stories Total | 19 |
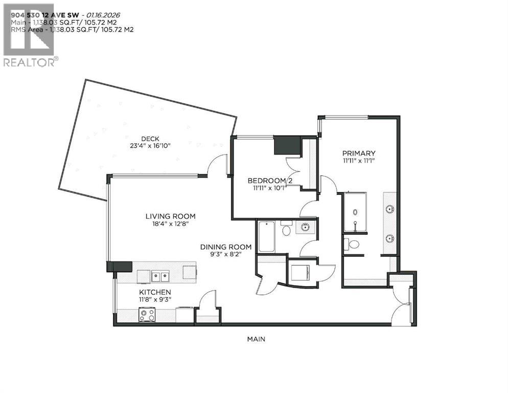
| Size Interior | 1,138 Ft2 |
| Total Finished Area | 1138 Sqft |
| Type | Apartment |
| Underground |
| Acreage | No |
| Land Amenities | Recreation Nearby, Shopping |
| Size Total Text | Unknown |
| Zoning Description | Dc (pre 1p2007) |
| Level | Type | Length | Width | Dimensions |
|---|---|---|---|---|
| Main Level | Living Room | 18.33 Ft x 12.67 Ft | ||
| Main Level | Dining Room | 9.25 Ft x 8.17 Ft | ||
| Main Level | Kitchen | 11.67 Ft x 9.25 Ft | ||
| Main Level | 4pc Bathroom | .00 Ft x .00 Ft | ||
| Main Level | 4pc Bathroom | .00 Ft x .00 Ft | ||
| Main Level | Bedroom | 11.92 Ft x 10.08 Ft | ||
| Main Level | Primary Bedroom | 11.92 Ft x 11.08 Ft |
Contact us for more information
(403) 253-1901
Don't have an account? Sign Up