
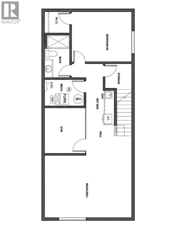
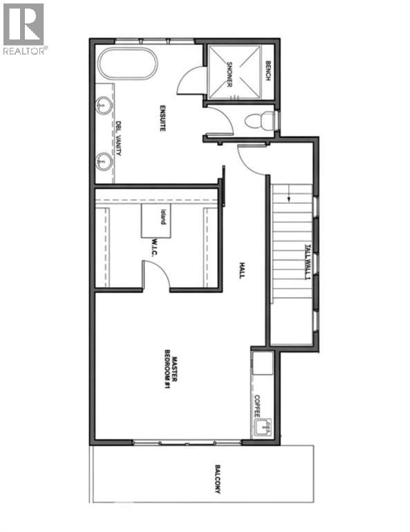
This gorgeous three-story duplex on a premier Altadore street offers an expansive floor plan meticulously designed for modern living. This build features two curated color palettes—light and dark. Please refer to photos of the builder's previous builds for a preview of both finish styles. The main level welcomes you with a formal foyer and an elegant dining room that flows into a chef-inspired kitchen featuring a massive quartz island, a walk-in pantry, and a dedicated pocket office—perfect for working from home. Relax in the sun-filled living room anchored by a sleek gas fireplace, which leads into a functional rear mudroom and a conveniently located powder room.The second level is thoughtfully laid out with three bedrooms and a separate laundry room. This floor includes a spacious secondary master bedroom with its own private ensuite bath and walk-in closet, a second bedroom also featuring a walk-in closet, and a versatile third bedroom. Highlighting the home's unique design, the entire third floor is a private primary retreat, offering ultimate seclusion with a private balcony, a massive walk-in closet with its own center island, and a spa-like ensuite featuring a deep soaker tub, double vanity, and custom shower. The fully developed basement adds even more value with a dedicated home gym, a spacious media room, a stylish wet bar, a fifth bedroom, and ample storage. This stunning property blends luxury and function, situated just steps from the vibrant shops of Marda Loop, top-tier schools, and local parks. (id:61582)
| MLS® Number | A2295253 |
| Property Type | Single Family |
| Community Name | Altadore |
| Amenities Near By | Park, Playground, Schools, Shopping |
| Features | Other, Back Lane, Wet Bar, Closet Organizers, No Animal Home, No Smoking Home |
| Parking Space Total | 2 |
| Plan | 5783t |
| Structure | Deck |
| Bathroom Total | 5 |
| Bedrooms Above Ground | 4 |
| Bedrooms Below Ground | 1 |
| Bedrooms Total | 5 |
| Appliances | Refrigerator, Dishwasher, Stove, Oven, Microwave, Hood Fan, Garage Door Opener |
| Basement Development | Finished |
| Basement Type | Full (finished) |
| Constructed Date | 2026 |
| Construction Material | Wood Frame |
| Construction Style Attachment | Semi-detached |
| Cooling Type | See Remarks |
| Fireplace Present | Yes |
| Fireplace Total | 1 |
| Flooring Type | Carpeted, Hardwood, Tile |
| Foundation Type | Poured Concrete |
| Half Bath Total | 1 |
| Heating Type | Forced Air |
| Stories Total | 3 |
| Size Interior | 2,807 Ft2 |
| Total Finished Area | 2807.4 Sqft |
| Type | Duplex |
| Detached Garage | 2 |
| Acreage | No |
| Fence Type | Fence |
| Land Amenities | Park, Playground, Schools, Shopping |
| Size Frontage | 7.62 M |
| Size Irregular | 290.23 |
| Size Total | 290.23 M2|0-4,050 Sqft |
| Size Total Text | 290.23 M2|0-4,050 Sqft |
| Zoning Description | R-cg |
| Level | Type | Length | Width | Dimensions |
|---|---|---|---|---|
| Second Level | Bedroom | 12.00 Ft x 11.83 Ft | ||
| Second Level | Other | 4.25 Ft x 4.50 Ft | ||
| Second Level | Bedroom | 9.75 Ft x 15.75 Ft | ||
| Second Level | 4pc Bathroom | 9.75 Ft x 5.00 Ft | ||
| Second Level | Other | 6.92 Ft x 9.25 Ft | ||
| Second Level | Bedroom | 14.00 Ft x 12.92 Ft | ||
| Second Level | 5pc Bathroom | 6.92 Ft x 15.92 Ft | ||
| Second Level | Laundry Room | 9.25 Ft x 6.00 Ft | ||
| Third Level | 5pc Bathroom | 16.83 Ft x 12.50 Ft | ||
| Third Level | Primary Bedroom | 13.00 Ft x 15.75 Ft | ||
| Third Level | Other | 8.75 Ft x 11.33 Ft | ||
| Third Level | Other | 7.92 Ft x 2.00 Ft | ||
| Third Level | Other | 5.00 Ft x 20.67 Ft | ||
| Basement | Recreational, Games Room | 13.00 Ft x 18.83 Ft | ||
| Basement | Exercise Room | 10.00 Ft x 9.00 Ft | ||
| Basement | Other | 2.50 Ft x 7.50 Ft | ||
| Basement | Bedroom | 13.00 Ft x 11.00 Ft | ||
| Basement | Other | 5.50 Ft x 4.75 Ft | ||
| Basement | 3pc Bathroom | 9.50 Ft x 5.50 Ft | ||
| Main Level | Other | 9.50 Ft x 6.75 Ft | ||
| Main Level | Dining Room | 13.42 Ft x 12.67 Ft | ||
| Main Level | Office | 6.75 Ft x 6.00 Ft | ||
| Main Level | Pantry | 2.42 Ft x 7.25 Ft | ||
| Main Level | Other | 18.58 Ft x 13.42 Ft | ||
| Main Level | Living Room | 15.00 Ft x 14.67 Ft | ||
| Main Level | Other | 8.25 Ft x 5.08 Ft | ||
| Main Level | 2pc Bathroom | 5.08 Ft x 5.17 Ft | ||
| Main Level | Other | 21.33 Ft x 10.00 Ft |
Contact us for more information
(403) 262-7653
(403) 648-2765
(403) 262-7653
(403) 648-2765
Don't have an account? Sign Up