preloader

2916 17 Street Se Calgary, Alberta T2G 3W3

1 Bedroom 1 Bathroom 1,217 ft2
None

$549,000.00

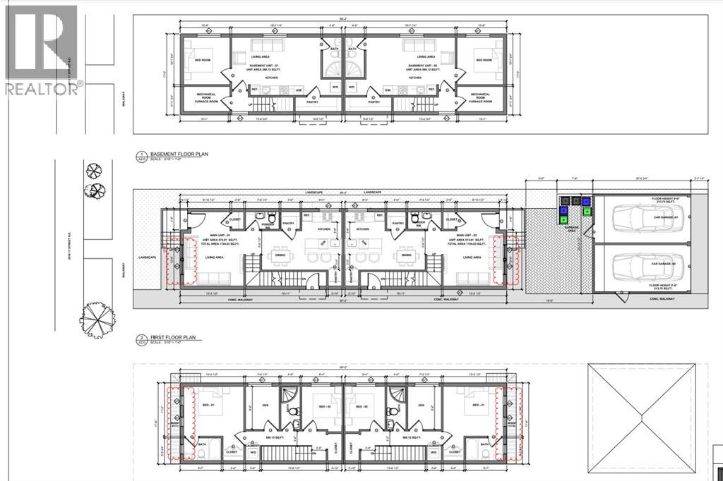
Attention Builders, Developers & Investors! Exceptional DP APPROVED for 4 UNITS, infill opportunity in Inglewood, one of Calgary’s most iconic and in-demand inner-city communities. Approved for a back-to-back duplex with two legal basement suites (4 units total), this project is truly shovel-ready. Utilities have been disconnected, the demolition permit is approved, and the interior of the existing home has already been stripped down to the studs — no asbestos remediation required. Build immediately and capitalize this season. Situated just 8 minutes from downtown, Inglewood is renowned for its vibrant character, strong rental demand, and long-term appreciation. The neighborhood offers an unbeatable lifestyle with river pathways, parks, schools, breweries, boutiques, music venues, and some of Calgary’s top restaurants, all within walking distance. Easy access to transit and major roadways further enhances appeal for both end-users and tenants. This is a rare opportunity to develop in a high-barrier, mature inner-city location where new inventory is limited. Ideal for strong resale value, long-term rental hold, or investor exit, in a community that consistently outperforms. Don’t miss your chance to build in one of Calgary’s most established and sought-after neighborhoods. (id:61582)

Property Details

MLS® Number A2290249
Property Type Single Family
Community Name Inglewood
Amenities Near By Schools, Shopping
Features See Remarks
Parking Space Total 1
Plan 6700an
Structure None

Building

Bathroom Total 1
Bedrooms Above Ground 1
Bedrooms Total 1
Appliances None
Basement Development Unfinished
Basement Type Full (unfinished)
Constructed Date 1913
Construction Style Attachment Detached
Cooling Type None
Flooring Type Other
Foundation Type Poured Concrete
Stories Total 2
Size Interior 1,217 Ft2
Total Finished Area 1217 Sqft
Type House

Parking

Detached Garage 1

Land

Acreage No
Fence Type Partially Fenced
Land Amenities Schools, Shopping
Size Depth 36.66 M
Size Frontage 7.62 M
Size Irregular 279.00
Size Total 279 M2|0-4,050 Sqft
Size Total Text 279 M2|0-4,050 Sqft
Zoning Description R-cg

Rooms

Level Type Dimensions
Second Level Bedroom 9.67 Ft x 13.83 Ft
Second Level 3pc Bathroom Measurements not available
Main Level Kitchen 9.42 Ft x 5.83 Ft

Contact Us

Contact us for more information

Generating Captcha

Grand Realty
Unit 24, 2333 - 18 Ave Ne
Calgary, Alberta T2E 8T6

(403) 460-3888
(403) 474-8333

Your Favourites

 

No Favourites Found

 

User Login

Lost your password?