preloader

2232 30 Avenue Sw Calgary, Alberta T2T 1R8

4 Bedroom 4 Bathroom 1,967 ft2
Fireplace See Remarks Forced Air

$1,399,000.00

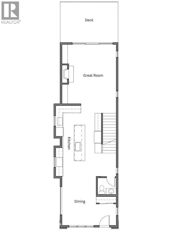
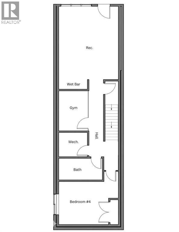
Modern luxury in the heart of Richmond. This exceptional detached two-story home offers a seamless open-concept floor plan designed for both sophisticated entertaining and comfortable family living. This build features two curated color palettes—light and dark. Please refer to photos of the builder's previous builds for a preview of both finish styles. The main level is anchored by a gourmet chef’s kitchen featuring a massive quartz island, premium finishes, and a spacious dining area that flows into the inviting living room with a sleek gas fireplace. A convenient powder room completes this level.The upper floor is thoughtfully designed with a large laundry room and three generous bedrooms—each boasting its own private walk-in closet. The primary retreat is a true sanctuary, featuring an expansive layout and a spa-like five-piece ensuite with a deep soaker tub and double vanity.Rare for the area, this full walkout home leads to a professionally finished lower level. Enjoy a dedicated home gym, a stylish wet bar, a large recreation room, and a fourth guest bedroom. Outside, the walkout access provides a seamless transition to the backyard and the double detached garage. Experience the perfect blend of inner-city convenience and high-end craftsmanship just minutes from Marda Loop and downtown. (id:61582)

Property Details

MLS® Number A2295237
Property Type Single Family
Community Name Richmond
Amenities Near By Park, Playground, Schools, Shopping
Features Other, Back Lane, Wet Bar, Closet Organizers, No Animal Home, No Smoking Home
Parking Space Total 2
Plan 4479p
Structure Deck

Building

Bathroom Total 4
Bedrooms Above Ground 3
Bedrooms Below Ground 1
Bedrooms Total 4
Appliances Refrigerator, Dishwasher, Stove, Oven, Microwave, Hood Fan, Garage Door Opener
Basement Development Finished
Basement Features Walk Out
Basement Type Full (finished)
Constructed Date 2026
Construction Material Wood Frame
Construction Style Attachment Detached
Cooling Type See Remarks
Fireplace Present Yes
Fireplace Total 1
Flooring Type Carpeted, Hardwood, Tile
Foundation Type Poured Concrete
Half Bath Total 1
Heating Type Forced Air
Stories Total 2
Size Interior 1,967 Ft2
Total Finished Area 1967 Sqft
Type House

Parking

Detached Garage 2

Land

Acreage No
Fence Type Fence
Land Amenities Park, Playground, Schools, Shopping
Size Frontage 7.65 M
Size Irregular 290.32
Size Total 290.32 M2|0-4,050 Sqft
Size Total Text 290.32 M2|0-4,050 Sqft
Zoning Description R-cg

Rooms

Level Type Dimensions
Basement Bedroom 14.50 Ft x 10.42 Ft
Basement 6pc Bathroom 10.67 Ft x 5.00 Ft
Basement Other 7.00 Ft x 6.17 Ft
Basement Exercise Room 7.00 Ft x 9.67 Ft
Basement Recreational, Games Room 14.50 Ft x 20.00 Ft
Basement Other 2.33 Ft x 7.00 Ft
Basement Other 17.00 Ft x 12.00 Ft
Main Level Other 8.50 Ft x 5.92 Ft
Main Level Dining Room 16.00 Ft x 11.00 Ft
Main Level 2pc Bathroom 5.50 Ft x 5.00 Ft
Main Level Other 20.33 Ft x 13.50 Ft
Main Level Living Room 14.00 Ft x 20.08 Ft
Main Level Other 17.00 Ft x 12.00 Ft
Main Level Other 5.00 Ft x 7.00 Ft
Upper Level Bedroom 9.75 Ft x 12.00 Ft
Upper Level Other 5.17 Ft x 4.25 Ft
Upper Level Bedroom 9.58 Ft x 12.00 Ft
Upper Level Other 4.00 Ft x 6.33 Ft
Upper Level 4pc Bathroom 5.33 Ft x 10.58 Ft
Upper Level Laundry Room 6.00 Ft x 7.92 Ft
Upper Level 5pc Bathroom 12.08 Ft x 9.75 Ft
Upper Level Other 11.50 Ft x 5.83 Ft
Upper Level Primary Bedroom 16.00 Ft x 14.00 Ft

Contact Us

Contact us for more information

Generating Captcha

Exp Realty
700 - 1816 Crowchild Trail Nw
Calgary, Alberta T2M 3Y7

(403) 262-7653
(403) 648-2765

Exp Realty
700 - 1816 Crowchild Trail Nw
Calgary, Alberta T2M 3Y7

(403) 262-7653
(403) 648-2765

Your Favourites

 

No Favourites Found

 

User Login

Lost your password?