
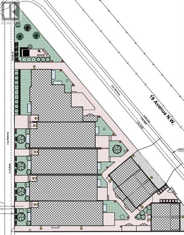
OVER 10,000 SQFT LOT! DP IN PLACE!! READY TO BUILD! LUXURY TOWNHOMES PERFECT FOR SEPERATE TITLED SALES! (Potentially 2 additional adjacent 50x120ft lots available should you be looking for even more development land!) Exceptional development opportunity in the heart of Montgomery! Situated on a massive corner lot, this property comes with development permits already in place for five executive townhomes, each featuring its own legal suite, plus a total of 5 garages. With professionally designed plans by one of Calgary’s top designers, this is a turnkey, ready-to-break-ground project—and not your typical small-scale townhome development. The thoughtfully designed site also includes ample green space for residents, enhancing livability and long-term appeal.Ideally located close to numerous amenities, public transit, the University of Calgary, and the Foothills Hospital, this site also offers quick access to major roadways and an easy escape to the mountains. Montgomery continues to be one of Calgary’s most sought-after inner-city communities, making this an excellent opportunity for builders and investors alike.Perfect for rental income, MLI select, or resale, this is a rare chance to secure a premium development on a standout lot in a prime location. (id:61582)
| MLS® Number | A2295227 |
| Property Type | Vacant Land |
| Community Name | Montgomery |
| Features | Back Lane |
| Plan | 2312027 |
| Age | Age Is Unknown |
| Acreage | No |
| Fence Type | Not Fenced |
| Size Irregular | 970.00 |
| Size Total | 970 M2|7,251 - 10,889 Sqft |
| Size Total Text | 970 M2|7,251 - 10,889 Sqft |
| Zoning Description | R-cg |
Contact us for more information
(403) 618-6984
Don't have an account? Sign Up