
Maintenance, Common Area Maintenance, Heat, Insurance, Ground Maintenance, Property Management, Reserve Fund Contributions, Sewer, Waste Removal, Water
$560.00 Monthly*****Open House on Saturday from 1-4pm and Sunday from 1-4pm Designed for both comfort and style, this C1 floor plan delivers a well-balanced 2-bedroom, 2-bath plus den layout with an inviting open-concept design. Quartz countertops, luxury vinyl plank flooring, and modern recessed lighting create a clean, contemporary aesthetic, while west-facing windows flood the home with warm natural light. The primary retreat features a walk-in closet and private ensuite, and wall-mounted air conditioning ensures year-round comfort.Life at The Monarch is elevated by an outstanding amenity offering, including a full-service fitness center, yoga studio, boardroom, residents’ lounge, entertaining space with deck and BBQ, two rooftop patios, guest suite, and a convenient dog wash station. Underground parkade parking provides secure and effortless access.Located in the heart of Cooper’s Crossing, just steps from Coopers Promenade, this address places you close to schools, parks, and daily conveniences, with quick connections to 8th Avenue, 40th Avenue, and Highway 2 making the commute to Calgary seamless. A smart opportunity for those seeking low-maintenance, upscale condo living in one of Airdrie’s most established communities. (id:61582)
12:00 pm
Ends at:4:00 pm
12:00 pm
Ends at:4:00 pm
1:00 pm
Ends at:4:00 pm
1:00 pm
Ends at:4:00 pm
| MLS® Number | A2280749 |
| Property Type | Single Family |
| Community Name | Coopers Crossing |
| Amenities Near By | Park, Playground, Schools, Shopping |
| Community Features | Pets Allowed With Restrictions |
| Features | Pvc Window, Guest Suite, Parking |
| Parking Space Total | 1 |
| Plan | 2511666 |
| Bathroom Total | 2 |
| Bedrooms Above Ground | 2 |
| Bedrooms Total | 2 |
| Amenities | Exercise Centre, Guest Suite, Party Room |
| Appliances | Refrigerator, Window/sleeve Air Conditioner, Range - Electric, Dishwasher, Microwave, Hood Fan, Window Coverings |
| Constructed Date | 2025 |
| Construction Material | Wood Frame |
| Construction Style Attachment | Attached |
| Cooling Type | Wall Unit |
| Exterior Finish | Brick, Composite Siding |
| Flooring Type | Carpeted, Vinyl Plank |
| Foundation Type | Poured Concrete |
| Heating Type | Baseboard Heaters |
| Stories Total | 4 |
| Size Interior | 1,048 Ft2 |
| Total Finished Area | 1048.21 Sqft |
| Type | Apartment |
| Acreage | No |
| Land Amenities | Park, Playground, Schools, Shopping |
| Size Total Text | Unknown |
| Zoning Description | R3 |
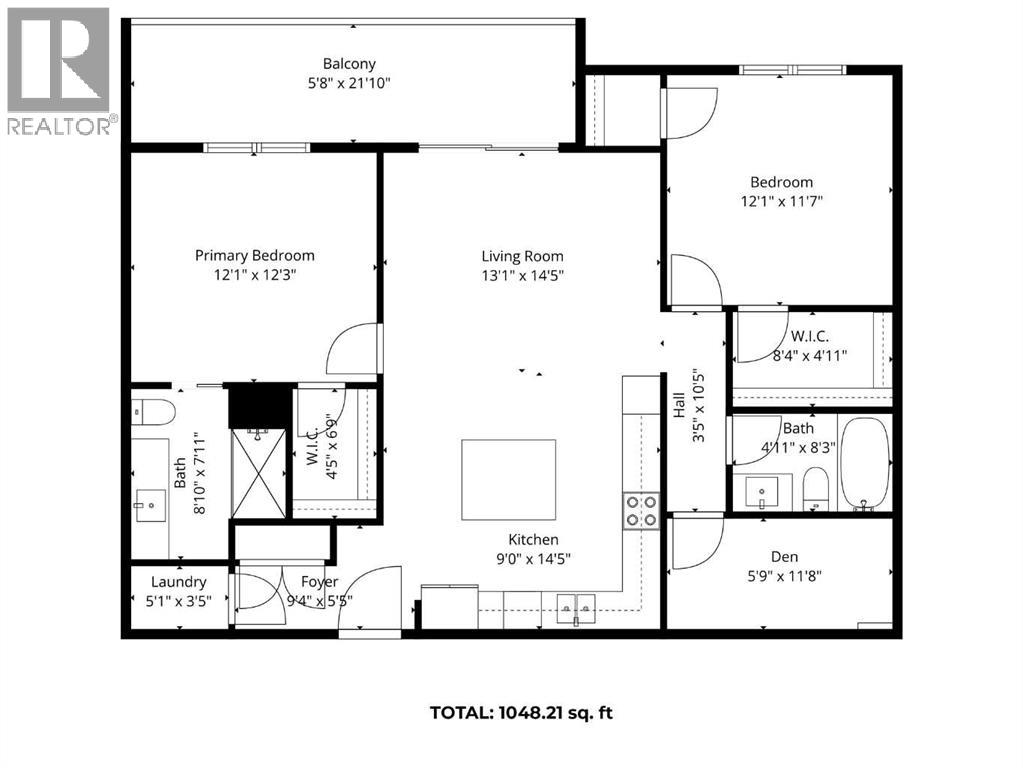
| Level | Type | Length | Width | Dimensions |
|---|---|---|---|---|
| Main Level | Kitchen | 9.00 Ft x 14.42 Ft | ||
| Main Level | Dining Room | 12.33 Ft x 6.58 Ft | ||
| Main Level | Living Room | 13.08 Ft x 14.42 Ft | ||
| Main Level | Laundry Room | 5.08 Ft x 3.42 Ft | ||
| Main Level | Den | 5.75 Ft x 11.67 Ft | ||
| Main Level | Primary Bedroom | 12.08 Ft x 12.25 Ft | ||
| Main Level | Bedroom | 12.08 Ft x 11.58 Ft | ||
| Main Level | 3pc Bathroom | 8.83 Ft x 7.92 Ft | ||
| Main Level | 4pc Bathroom | 4.92 Ft x 8.25 Ft | ||
| Main Level | Other | 5.67 Ft x 22.83 Ft |
Contact us for more information
Don't have an account? Sign Up